Bran Granulation Line
Bran is a by-product of flour milling, which is a hard shell of grain and is unique in its biological composition. Depending on the type of processed grain for flour or groats, bran is distinguished: wheat, rye, oat, rice, buckwheat, millet, etc. Wheat and rye bran are most often used in feeding farm animals. This raw material is an important source of essential fatty acids and trace elements.
Wheat bran contains more than 90% of all biologically valuable wheat substances: macro- and microelements, mineral salts, vitamins, protein and fiber, which provides healthy nutrition and has a beneficial effect on the digestive system, stabilize metabolism in animals. Besides, this valuable product is inexpensive.
In the production of compound feeds, bran is used either in its pure form or as part of feed mixtures. Loose bran has a number of disadvantages, which include high storage and transportation costs, and dust formation during animal feeding.
Granulated bran is in great demand among feed producers. The bran granulation line turns the “waste” into a “resource" and the “storage problem" into an “export opportunity".
Appointment
The bran granulation line is a complex equipment designed for processing loose bran (a by-product of flour production) into dense granules that are convenient for storage and transportation. This technology is widely used in the feed industry for feeding farm animals.
Granulated bran is a valuable component of animal feed for cattle, pigs, poultry and small animals. Due to the high content of fiber, protein and vitamins, they improve the digestion and general condition of animals. Such lines are especially beneficial for flour mills, farms and feed producers seeking to increase profitability through the processing of secondary raw materials.
Raw materials and products
Raw materials – loose bran (wheat, rye, oat, rice, buckwheat, millet), products – granulated bran.
Technology
Bran production is directly related to grain processing and flour production, which is understandable, because bran is a byproduct of such production. Bran granulation is carried out on special equipment using a press granulator.
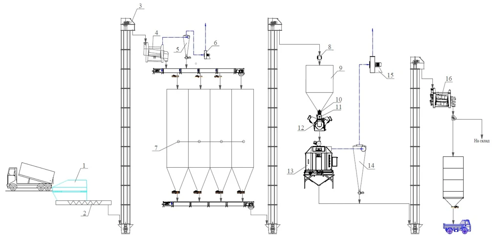
1. Reception and preparation of raw materials
The bran is loaded into the receiving hopper (1) of the preparatory compartment and then, by a screw conveyor (2) and a norium (3), they are fed to the separator (4), where lumps and large particles are separated from the main product. For the purpose of dedusting, the separator is equipped with an aspiration system, which includes a fan (6) and a cyclone (5).
2. Storage of prepared raw materials
The separated bran is distributed by means of a screw conveyor to silos (7) for operational storage and further granulation.
The granulation, cooling and sieving site is technologically more complex than the preparatory department and higher requirements are placed on it. The task of the site is not just to obtain pellets, but to produce high-quality finished products, since their bulk weight and shelf life depend on this, which affects the demand for products and their price.
From the silos, the raw materials are unloaded onto a screw conveyor and moved to a hole, which lifts them into a storage hopper for raw materials (9). Previously, before loading into the hopper, the bran is cleaned of metal impurities in a magnetic separator (8).
3. Air conditioning
The raw materials are fed into a mixer, where they are moistened with steam (120-150 °C). This makes the bran plastic and makes it easier to press.
The bran is dispensed using a screw feeder (10) and fed into a continuous mixer (11). In the mixer, the bran is subjected to heat treatment with wet steam and aged for a certain time. Here, the product is moistened to 12-14% and heated to the required temperature. The addition of steam helps to reduce power consumption and reduce wear on the working parts of the press granulator during operation. The product prepared in this way is sent to the press granulator (12).
4. Granulation
Wet bran is fed into a press granulator with a flat or ring matrix. In the pressing chamber, the bran is pressed by rollers through the holes of a rotating die to produce granules at the outlet. The granules are cut off from below with knives.
5. Cooling
The hot pellets are fed into a countercurrent cooler (13) for cooling by an air stream to a temperature 5 °C above ambient. This prevents moisture condensation and mold. The aspiration system of the countercurrent cooler includes a cyclone (14), a fan (15) and an unloading airlock for removing dust particles of the product.
6. Sifting
After unloading the cooled granules from the cooler, they are separated from small particles on the sifter (16), high-quality granules are sent to the bins of finished products, and small particles are re-granulated.
7. Packing and storage
Finished pellets are packed in bags (from 15 to 50 kg) or in big bags, or stored in bulk in silos. At the site of packaging and storage of finished products, quantitative accounting of granulated bran is carried out when they are packed both in small containers (bags, bags) and in large containers (big bags). When storing products in bulk, accounting can be carried out during shipment to the consumer using car scales.
The technological process takes place automatically.

Placement recommendations:
- The granulator and cooler are the central nodes, they require a solid foundation.
- The burrow is vertical, occupies little area, but requires height.
- Packing is in a separate area with an entrance for trucks.
The composition of the processing line (complete set of the line)
The bran granulation line is based on a press granulator complete with an air conditioner and a cooler, and the entire system operates as a single technological cycle: preparation → granulation → cooling → sorting → packaging.
- Hopper for receiving raw materials
- Vibrating separator
- Screw conveyor
- Fans, cyclones
- Magnetic separator
- The press granulator
- Mixer-air conditioner
- Countercurrent cooler
- The sifter
- Operational storage silos
- Bins of finished products
- Cabinet with control panel
Bran is a light, dusty and low-density raw material, therefore, without pre-conditioning and subsequent cooling, it is impossible to obtain strong, durable granules. It is the combination of these nodes that forms the technological basis of the line.
Characteristic
Line characteristics (depending on the layout):
Efficiency:
- average from 1,500 to 2,500 kg/hr per hour
- maximum up to 20 t/h
Power: from 98 kW to 250 kW
Voltage:
- 220/380 V, 50 Hz - up to 380 V, 50 Hz, three-phase
Dimensions: from 4×3.8×5.6 m. - up to 20×6×12 m.
Room height: at least 6-7 m. - up to 12-14 m.
Number of service personnel: 1-3 persons
To fully accommodate the line, you will need a room with an area of at least 100 square meters. meters with utilities and electricity.
Line equipment Features:
- The line is designed for continuous operation 24/7
- The use of an annular matrix press granulator ensures uniform load distribution and a long service life
- The double press rollers distribute the pressure evenly, reducing wear and improving the quality of the pellets
- Steam conditioning is the key to durable granules (improves the plasticity of raw materials, activates natural binders (lignin, starch), disinfects raw materials (destruction of mold and bacteria)
- Countercurrent cooler – preservation of quality (without cooling, they quickly caked and moldy
- Cyclone - provides primary cleaning
- Bag filter - fine cleaning (up to 99.5% dust capture)
- High-pressure fan - stable air exchange
Advantages
The benefits of granulated bran:
- Economic efficiency - increasing the cost of waste by 5-6 times
- Heat treatment at sufficiently high temperatures makes it possible to reduce the number of pathogenic microorganisms while preserving trace elements and vitamins
- Improved fluidity and transportation - reduces the need to increase the capacity of transport equipment, as well as product losses during movement, its occurrence in transport lines
- Reduction of dust formation - industrial safety and comfort when feeding animals
- Increased flowability - simplifies automated feed delivery
- Reduction of explosion and fire risk by reducing the concentration of dust in the air
- Increased shelf life - granules are less affected by the environment due to their low hygroscopicity, do not absorb moisture from the air, stick together less, do not crumble, and occupy less storage space
- The bran granulation line is not just an equipment, but a full-fledged processing complex combining reliability, automation and economic efficiency. It is ideal for milling, livestock and agro-industrial enterprises seeking a closed production cycle and maximizing profits from recycled materials.
The bran granulation line is a complex equipment designed for processing loose bran (a by-product of flour production) into dense granules that are convenient for storage and transportation. This technology is widely used in the feed industry for feeding farm animals.
Granulated bran is a valuable component of animal feed for cattle, pigs, poultry and small animals. Due to the high content of fiber, protein and vitamins, they improve the digestion and general condition of animals. Such lines are especially beneficial for flour mills, farms and feed producers seeking to increase profitability through the processing of secondary raw materials.
Raw materials – loose bran (wheat, rye, oat, rice, buckwheat, millet), products – granulated bran.
Bran production is directly related to grain processing and flour production, which is understandable, because bran is a byproduct of such production. Bran granulation is carried out on special equipment using a press granulator.
1. Reception and preparation of raw materials
The bran is loaded into the receiving hopper (1) of the preparatory compartment and then, by a screw conveyor (2) and a norium (3), they are fed to the separator (4), where lumps and large particles are separated from the main product. For the purpose of dedusting, the separator is equipped with an aspiration system, which includes a fan (6) and a cyclone (5).
2. Storage of prepared raw materials
The separated bran is distributed by means of a screw conveyor to silos (7) for operational storage and further granulation.
The granulation, cooling and sieving site is technologically more complex than the preparatory department and higher requirements are placed on it. The task of the site is not just to obtain pellets, but to produce high-quality finished products, since their bulk weight and shelf life depend on this, which affects the demand for products and their price.
From the silos, the raw materials are unloaded onto a screw conveyor and moved to a hole, which lifts them into a storage hopper for raw materials (9). Previously, before loading into the hopper, the bran is cleaned of metal impurities in a magnetic separator (8).
3. Air conditioning
The raw materials are fed into a mixer, where they are moistened with steam (120-150 °C). This makes the bran plastic and makes it easier to press.
The bran is dispensed using a screw feeder (10) and fed into a continuous mixer (11). In the mixer, the bran is subjected to heat treatment with wet steam and aged for a certain time. Here, the product is moistened to 12-14% and heated to the required temperature. The addition of steam helps to reduce power consumption and reduce wear on the working parts of the press granulator during operation. The product prepared in this way is sent to the press granulator (12).
4. Granulation
Wet bran is fed into a press granulator with a flat or ring matrix. In the pressing chamber, the bran is pressed by rollers through the holes of a rotating die to produce granules at the outlet. The granules are cut off from below with knives.
5. Cooling
The hot pellets are fed into a countercurrent cooler (13) for cooling by an air stream to a temperature 5 °C above ambient. This prevents moisture condensation and mold. The aspiration system of the countercurrent cooler includes a cyclone (14), a fan (15) and an unloading airlock for removing dust particles of the product.
6. Sifting
After unloading the cooled granules from the cooler, they are separated from small particles on the sifter (16), high-quality granules are sent to the bins of finished products, and small particles are re-granulated.
7. Packing and storage
Finished pellets are packed in bags (from 15 to 50 kg) or in big bags, or stored in bulk in silos. At the site of packaging and storage of finished products, quantitative accounting of granulated bran is carried out when they are packed both in small containers (bags, bags) and in large containers (big bags). When storing products in bulk, accounting can be carried out during shipment to the consumer using car scales.
The technological process takes place automatically.

Placement recommendations:
- The granulator and cooler are the central nodes, they require a solid foundation.
- The burrow is vertical, occupies little area, but requires height.
- Packing is in a separate area with an entrance for trucks.
The bran granulation line is based on a press granulator complete with an air conditioner and a cooler, and the entire system operates as a single technological cycle: preparation → granulation → cooling → sorting → packaging.
- Hopper for receiving raw materials
- Vibrating separator
- Screw conveyor
- Fans, cyclones
- Magnetic separator
- The press granulator
- Mixer-air conditioner
- Countercurrent cooler
- The sifter
- Operational storage silos
- Bins of finished products
- Cabinet with control panel
Bran is a light, dusty and low-density raw material, therefore, without pre-conditioning and subsequent cooling, it is impossible to obtain strong, durable granules. It is the combination of these nodes that forms the technological basis of the line.
Characteristic
Line characteristics (depending on the layout):
Efficiency:
- average from 1,500 to 2,500 kg/hr per hour
- maximum up to 20 t/h
Power: from 98 kW to 250 kW
Voltage:
- 220/380 V, 50 Hz - up to 380 V, 50 Hz, three-phase
Dimensions: from 4×3.8×5.6 m. - up to 20×6×12 m.
Room height: at least 6-7 m. - up to 12-14 m.
Number of service personnel: 1-3 persons
To fully accommodate the line, you will need a room with an area of at least 100 square meters. meters with utilities and electricity.
Line equipment Features:
- The line is designed for continuous operation 24/7
- The use of an annular matrix press granulator ensures uniform load distribution and a long service life
- The double press rollers distribute the pressure evenly, reducing wear and improving the quality of the pellets
- Steam conditioning is the key to durable granules (improves the plasticity of raw materials, activates natural binders (lignin, starch), disinfects raw materials (destruction of mold and bacteria)
- Countercurrent cooler – preservation of quality (without cooling, they quickly caked and moldy
- Cyclone - provides primary cleaning
- Bag filter - fine cleaning (up to 99.5% dust capture)
- High-pressure fan - stable air exchange
The benefits of granulated bran:
- Economic efficiency - increasing the cost of waste by 5-6 times
- Heat treatment at sufficiently high temperatures makes it possible to reduce the number of pathogenic microorganisms while preserving trace elements and vitamins
- Improved fluidity and transportation - reduces the need to increase the capacity of transport equipment, as well as product losses during movement, its occurrence in transport lines
- Reduction of dust formation - industrial safety and comfort when feeding animals
- Increased flowability - simplifies automated feed delivery
- Reduction of explosion and fire risk by reducing the concentration of dust in the air
- Increased shelf life - granules are less affected by the environment due to their low hygroscopicity, do not absorb moisture from the air, stick together less, do not crumble, and occupy less storage space
- The bran granulation line is not just an equipment, but a full-fledged processing complex combining reliability, automation and economic efficiency. It is ideal for milling, livestock and agro-industrial enterprises seeking a closed production cycle and maximizing profits from recycled materials.
Advantages of the equipment
Robust construction
Stable and reliable production
Maximum efficiency
Easy to operate
Easy maintenance
It will save space
Low maintenance costs
Long service life