Cyclone dust collector
Appointment
Cyclone dust collectors are used to purify dusty air coming from aspiration and pneumatic transmission networks from suspended solids.
Characteristic
Cyclone batteries, both standard and custom-made, can be completed from single cyclones of the UC type.
|
Type and model |
Filter surface |
Maximum air performance |
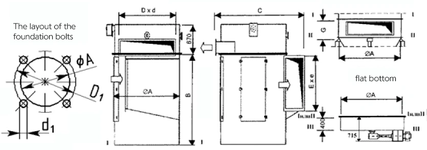
DIMENSIONS |
Sleeves B120 |
Net weight (kg) |
d1 (mm) |
D1, (mm) |
|||||||||
|
BA (mm) |
B (mm) |
C (mm) |
Dxd (mm) |
Exe (mm) |
F (mm) |
G (mm) |
number |
Length, mm |
Air consumption for blowing hoses (m3/hour) |
|||||||
|
m2 |
m3/hour |
|||||||||||||||
|
FKTs/A-12/20 |
9 |
8640 |
900 |
2080 |
1220 |
280x280 |
390x200 |
1050 |
500 |
12 |
2000 |
7-8.5 |
|
m16 |
1000 |
|
|
FKTs/A-12/25 |
11.3 |
9600 |
2580 |
2500 |
8-10 |
|||||||||||
|
FKTs/A-12/30 |
13.5 |
10560 |
3080 |
3000 |
10-12 |
|||||||||||
|
FKTs/A-24/20 |
18 |
17280 |
1100 |
2080 |
1470 |
520x280 |
600x250 |
1300 |
24 |
2000 |
13-17 |
m16 |
1200 |
|||
|
FKTs/A-24/25 |
22.6 |
19200 |
2580 |
2500 |
15-20 |
|||||||||||
|
FKTs/A-24/30 |
27 |
21120 |
3080 |
3000 |
18-24 |
|||||||||||
|
FKTs/A-36/15 |
20.3 |
25920 |
1300 |
1580 |
1715 |
800x280 |
650x280 |
1550 |
36 |
1500 |
15-20 |
1050 |
m16 |
1400 |
||
|
FKTs/A-36/20 |
27 |
2080 |
1730 |
750x310 |
2000 |
19-25 |
1120 |
|||||||||
|
FKTs/A-36/25 |
33.9 |
28800 |
2580 |
2500 |
22-30 |
1190 |
||||||||||
|
FKTs/A-36/30 |
40.6 |
31680 |
3080 |
3000 |
27-36 |
1260 |
||||||||||
|
FKTs/A-56/15 |
31.7 |
38880 |
1600 |
1580 |
2105 |
1150x280 |
700x370 |
2000 |
1000 |
56 |
1500 |
20-24 |
1440 |
m20 |
1700 |
|
|
FKTs/A-56/20 |
42.2 |
2080 |
2120 |
850x400 |
2000 |
30-39 |
1530 |
|||||||||
|
FKTs/A-56/25 |
52.7 |
43200 |
2580 |
2500 |
35-46 |
1620 |
||||||||||
|
FKTs/A-56/30 |
63.2 |
47520 |
3080 |
3000 |
42-55 |
1710 |
||||||||||
|
FKTs/A-72/20 |
54.2 |
51840 |
1750 |
2080 |
2325 |
1450x280 |
1000х450 |
2100 |
72 |
2000 |
37-50 |
1687 |
m20 |
1850 |
||
|
FKTs/A-72/25 |
67.8 |
57600 |
2580 |
2500 |
44-59 |
1787 |
||||||||||
|
FKTs/A-72/30 |
81.3 |
63360 |
3080 |
3000 |
53-71 |
1907 |
||||||||||
|
FKTs/A-96/20 |
72.3 |
77760 |
2100 |
2080 |
2800 |
1750x280 |
1150x550 |
2600 |
96 |
2000 |
50-66 |
2490 |
m24 |
2200 |
||
|
FKTs/A-96/25 |
90.4 |
86400 |
2580 |
2500 |
59-79 |
2650 |
||||||||||
|
FKTs/A-96/30 |
108.4 |
95040 |
3080 |
3000 |
71-95 |
2770 |
||||||||||
|
FKTs/A-120/20 |
90.4 |
103680 |
2300 |
2080 |
3000 |
1750x280 |
1390x550 |
2800 |
120 |
2000 |
63-83 |
3200 |
m24 |
2400 |
||
|
FKTs/A-120/25 |
113 |
115200 |
2580 |
2500 |
74-99 |
3380 |
||||||||||
|
FKTs/A-120/30 |
135.6 |
126720 |
3080 |
3000 |
89-119 |
3640 |
||||||||||

The principle of operation
Dusty air entering the cylinder swirls, under the influence of centrifugal forces, the dust is thrown towards the walls and falls into the lower hole. Purified air exits through the top opening.
Advantages
- High efficiency of separation of solid particles from air.
- Cost-effectiveness, reliability.
- Easy to install and operate, and versatile for a variety of industrial applications.
Cyclone dust collectors are used to purify dusty air coming from aspiration and pneumatic transmission networks from suspended solids.
Cyclone batteries, both standard and custom-made, can be completed from single cyclones of the UC type.
|
Type and model |
Filter surface |
Maximum air performance |
DIMENSIONS |
Sleeves B120 |
Net weight (kg) |
d1 (mm) |
D1, (mm) |
|||||||||
|
BA (mm) |
B (mm) |
C (mm) |
Dxd (mm) |
Exe (mm) |
F (mm) |
G (mm) |
number |
Length, mm |
Air consumption for blowing hoses (m3/hour) |
|||||||
|
m2 |
m3/hour |
|||||||||||||||
|
FKTs/A-12/20 |
9 |
8640 |
900 |
2080 |
1220 |
280x280 |
390x200 |
1050 |
500 |
12 |
2000 |
7-8.5 |
|
m16 |
1000 |
|
|
FKTs/A-12/25 |
11.3 |
9600 |
2580 |
2500 |
8-10 |
|||||||||||
|
FKTs/A-12/30 |
13.5 |
10560 |
3080 |
3000 |
10-12 |
|||||||||||
|
FKTs/A-24/20 |
18 |
17280 |
1100 |
2080 |
1470 |
520x280 |
600x250 |
1300 |
24 |
2000 |
13-17 |
m16 |
1200 |
|||
|
FKTs/A-24/25 |
22.6 |
19200 |
2580 |
2500 |
15-20 |
|||||||||||
|
FKTs/A-24/30 |
27 |
21120 |
3080 |
3000 |
18-24 |
|||||||||||
|
FKTs/A-36/15 |
20.3 |
25920 |
1300 |
1580 |
1715 |
800x280 |
650x280 |
1550 |
36 |
1500 |
15-20 |
1050 |
m16 |
1400 |
||
|
FKTs/A-36/20 |
27 |
2080 |
1730 |
750x310 |
2000 |
19-25 |
1120 |
|||||||||
|
FKTs/A-36/25 |
33.9 |
28800 |
2580 |
2500 |
22-30 |
1190 |
||||||||||
|
FKTs/A-36/30 |
40.6 |
31680 |
3080 |
3000 |
27-36 |
1260 |
||||||||||
|
FKTs/A-56/15 |
31.7 |
38880 |
1600 |
1580 |
2105 |
1150x280 |
700x370 |
2000 |
1000 |
56 |
1500 |
20-24 |
1440 |
m20 |
1700 |
|
|
FKTs/A-56/20 |
42.2 |
2080 |
2120 |
850x400 |
2000 |
30-39 |
1530 |
|||||||||
|
FKTs/A-56/25 |
52.7 |
43200 |
2580 |
2500 |
35-46 |
1620 |
||||||||||
|
FKTs/A-56/30 |
63.2 |
47520 |
3080 |
3000 |
42-55 |
1710 |
||||||||||
|
FKTs/A-72/20 |
54.2 |
51840 |
1750 |
2080 |
2325 |
1450x280 |
1000х450 |
2100 |
72 |
2000 |
37-50 |
1687 |
m20 |
1850 |
||
|
FKTs/A-72/25 |
67.8 |
57600 |
2580 |
2500 |
44-59 |
1787 |
||||||||||
|
FKTs/A-72/30 |
81.3 |
63360 |
3080 |
3000 |
53-71 |
1907 |
||||||||||
|
FKTs/A-96/20 |
72.3 |
77760 |
2100 |
2080 |
2800 |
1750x280 |
1150x550 |
2600 |
96 |
2000 |
50-66 |
2490 |
m24 |
2200 |
||
|
FKTs/A-96/25 |
90.4 |
86400 |
2580 |
2500 |
59-79 |
2650 |
||||||||||
|
FKTs/A-96/30 |
108.4 |
95040 |
3080 |
3000 |
71-95 |
2770 |
||||||||||
|
FKTs/A-120/20 |
90.4 |
103680 |
2300 |
2080 |
3000 |
1750x280 |
1390x550 |
2800 |
120 |
2000 |
63-83 |
3200 |
m24 |
2400 |
||
|
FKTs/A-120/25 |
113 |
115200 |
2580 |
2500 |
74-99 |
3380 |
||||||||||
|
FKTs/A-120/30 |
135.6 |
126720 |
3080 |
3000 |
89-119 |
3640 |
||||||||||

Dusty air entering the cylinder swirls, under the influence of centrifugal forces, the dust is thrown towards the walls and falls into the lower hole. Purified air exits through the top opening.
- High efficiency of separation of solid particles from air.
- Cost-effectiveness, reliability.
- Easy to install and operate, and versatile for a variety of industrial applications.
Advantages of the equipment
Robust construction
Stable and reliable production
Maximum efficiency
Easy to operate
Easy maintenance
It will save space
Low maintenance costs
Long service life